Pozemky - bývanie na predaj v lokalite Bernolákovo, okres Senec
Licencovaná realitná kancelária Orin real Vám ponúka na predaj rožný stavebný pozemok v Bernolákove v novej časti s rozlohou 475m2 so šírkou pozemku 15m a dĺžkou 33m.
Je to roh ulice Kondrótova a Čučoriedková, nová ulica s aktuálnou výstavbou na približne rovnakých pozemkoch.
Priamo na pozemok sú zavedené všetky inžinierske siete - plyn, elektrina, voda.
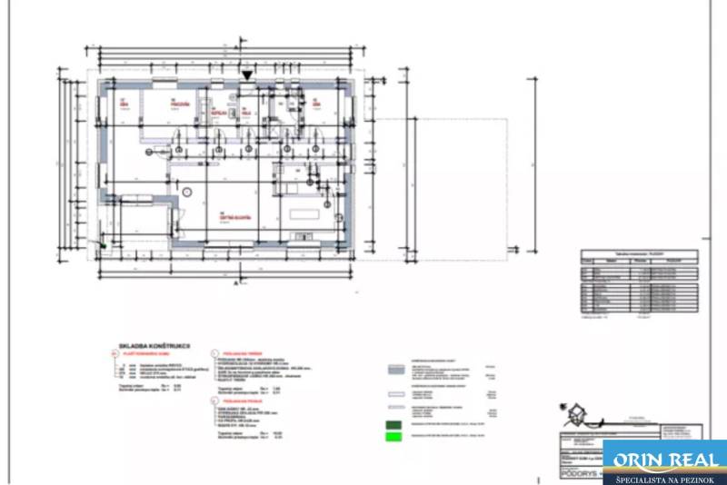
Pozemok je aj so stavebným povolením na RD na fotkách a podoryse, približná cena v stave holodom bola 70.000,- Eur podľa tohto projeku v stave na komplet okrem okien je 145.000,- Eur. Pozemok je ihneď k dispozícii s možnosťou okamžitej výstavby.
Obec Bernolákovo je rozvíjajúca sa obec s bohatou občnianskou vybavenosťou. V blízkosti v obci do 5min autom nájdete: poštu, obecný úrad - nové informačné centrum, matrika, školy, škôlky, strednú školu, reštaurácie, ihriská pre deti aj fotbalove ihrisko a novú športovú halu, Billa a obchodné centrum drogerie Pepco, Lidl a veľa iného...Okresné mesto Senec, pod ktoré Bernolákovo patrí ponúka kompletnú občiansku vybavenosť.
Cena pozemku je 189.900,- Eur + provízia RK 4.000,- Eur
0915957390
Podrobné informácie
Poloha nehnuteľnosti na mape
Čučoriedková, Bernolákovo, Senec, Slovensko
Pre viac informácií kontaktujte
